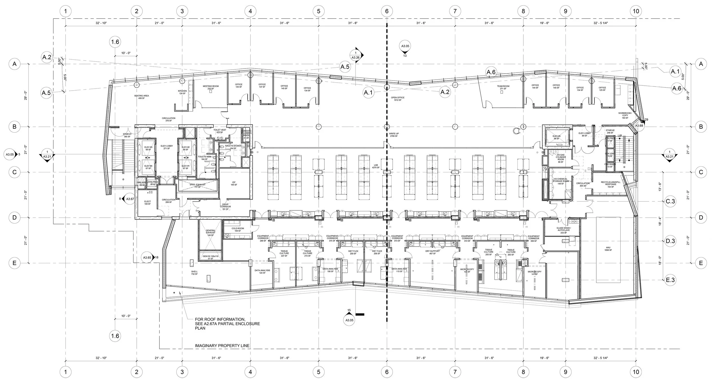
Biomedical Sciences Partnership Building

The Biomedical Sciences Partnership Building (BSPB) is a 10-story academic lab building located on the University of Arizona’s Phoenix Biomedical Campus. An addition to an existing medical school, the Health Sciences Education Building also by CO Architects, BSPB expanded the formal complexity of the existing facade and resulting copper panel cladding system. The project was completed on a contractor design-assist schedule and achieved LEED Silver certification.

Work completed with CO Architects.

CO Architects project page. Photos by Bill Timmerman.

Previous
Previous

Modular Artificial Gravity Platform