Bernard J. Tyson School of Medicine

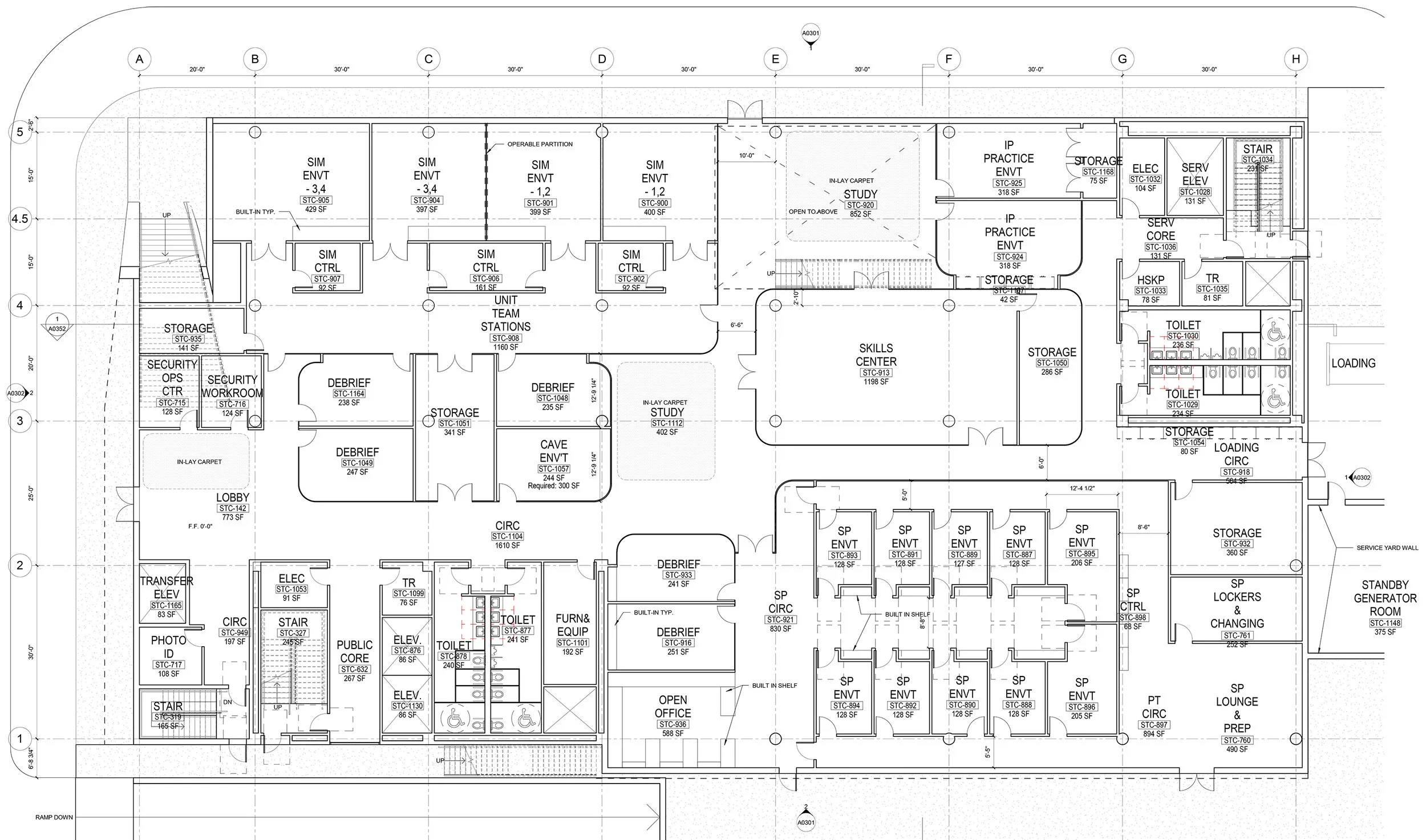
This 79,000 sf medical school located in Pasadena, California was designed to be a “laboratory for medical education” with an emphasis on well-being, social justice, and learning by doing. I spent over a year on the project during conceptual and schematic design helping to develop building organization and coordinating with the engineering team. This was named top institutional project in the 2021 Rethinking the Future design awards and received a 2020 Southern California Development Forum design award.

Work completed with Yazdani Studio of CannonDesign.

Metropolis Magazine profile

Previous
Previous

Space Habitat Vignettes

Next
Next

Modular Artificial Gravity Platform